Bij een verbouwing is soms een vergunning vereist.
Hiervoor heeft de gemeente bouwtekeningen nodig, die doorgaans worden opgesteld door een architect of bouwkundig tekenaar. De kosten hiervoor kunnen flink oplopen, waardoor het je zal verbazen hoe goedkoper het bij Bamu kan...
Bouwkundig ontwerp en Tekeningen
Ontwerp en bouwtekeningen van uw ruimte
Ontwerp & bouwtekeningen


Het opstellen van ontwerptekeningen voor uw ruimte, evenals de vereiste tekeningen voor uw vergunningsaanvragen.




3D Visualisatie & advies
3D visualisatie van uw project, voor een beter inzicht in de opties en mogelijkheden.
Indien er geen archieftekeningen beschikbaar zijn, kan ik uw pand inmeten en deze digitaliseren.
Digitaliseren van uw woning
Contacteer ons
Neem gerust contact op voor al uw bouwkundige tekeningen.
Prijsindicatie
Kleinschalig verbouwing
vanaf €250,-
Dakkapel/ nokverhoging
vanaf €250,-
Aanbouw/ dakopbouw/ erker
vanaf €600,-
Garage/ Tiny house
vanaf €400,-
Gevelwijziging
- op aanvraag
Nieuwbouw
- op aanvraag
kosten bij Bamu zijn relatief lager i.v.m. doelgroep. Zie tablad 'over Bamu' voor verdere toelichting.
Altijd één aanspreekpunt, wat zorgt voor efficiënte communicatie.
Tijdens het weekend & op feestdagen ook beschikbaar.
'Indien u evenveel besteedt aan het tekenwerk als aan de verbouwing, raad ik aan dit te heroverwegen.'
Projecten Overzicht
Hier deel ik mijn projecten en ervaringen met jullie.


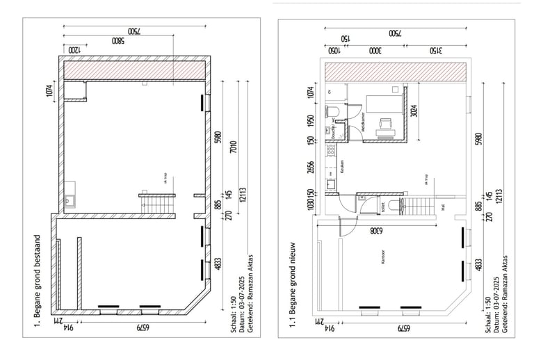
Splitsingstekeningen
Splitsingstekeningen kantoorgebouw naar woon-zorgcomplex in Arnhem
Van schets naar werktekeningen tbv aannemer.




Aanbouw + afdak
HSB opbouw- aanbouwtekeningen voor een particulier in Heteren.
→


Diensten
Bouwkundige tekeningen voor uw (vergunning) aanvraag.
Over
M: info@bamu-ontwerpt.nl
T: +31 6 36424371
Copyright © 2025. Bamu | ontwerp & tekenbureau


KVK: 97907383